kołobrzeski, Kołobrzeg, ppor. Edmunda Łopuskiego
NOWA CENA! Mieszkanie 60,87 m2, 3 pokoje w centrum Kołobrzegu!
Przedstawiamy Państwu nową inwestycję POD DACHAMI, która powstaje w Kołobrzegu przy skrzyżowaniu ulic ppor. Edmunda Łopuskiego i Unii lubelskiej.
OPIS INWESTYCJI:
Jest to projekt stworzony dla osób, które marzą o tym, aby zamieszkać w nowo wybudowanym mieszkaniu położonym w centrum miasta, a jednocześnie blisko morza...
Inwestycja obejmuje realizację:
3-poziomowej hali garażowej,
5 lokali usługowych na parterze,
49 funkcjonalnych mieszkań na 5 piętrach z balkonami.
Ponadto budynek zostanie wyposażony w cichobieżną windę oraz rowerownię, a także posiadać będzie miejsca postojowe w hali garażowej dodatkowo płatne.
OPIS LOKALIZACJI:
inwestycja mieści się w samym centrum miasta Kołobrzeg, w odległości:
- 400 m do dworca PKP,
- 400 m do malowniczych parków wokół placu 18 Marca i skweru Pionierów,
- 550 m do poczty,
- 600 m do katedry i tętniącej życiem kołobrzeskiej starówki
- 300 m do kładki łączącej centrum miasta ze strefą uzdrowiskową w parku Żeromskiego.
OPIS LOKALU:
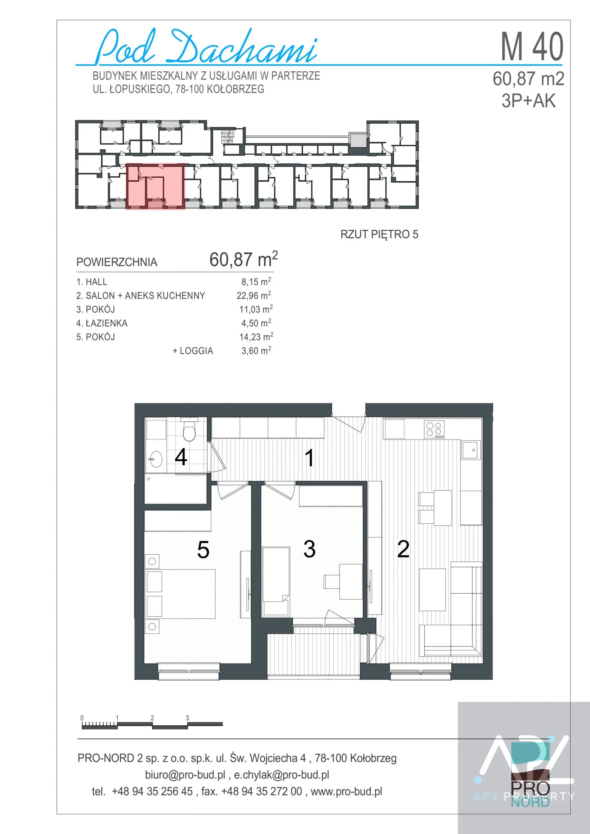
Lokal mieszkalny nr M40 o łącznej powierzchni 60,87 m2, zlokalizowany na 4 piętrze, składa się z następujących pomieszczeń:
· przedpokoju o pow. 8,15 m2
· salonu z aneksem kuchennym o pow. 22,96 m2
· pokoju o pow. 11,03 m2
· łazienki o pow. 4,50 m2
· pokoju o pow. 14,23 m2
Do lokalu mieszkalnego przynależy dodatkowo loggia o powierzchni 3,60 m2
CENA: 820.000 złotych w tym 8% VAT
To Twoja inwestycja w Kołobrzegu!
SERDECZNIE ZAPRASZAMY DO KONTAKTU!
APZ Property Nieruchomości
+48 507-555-050
+48 94 35 555 55
Oferujemy pomoc w zakresie obsługi kredytowej wraz ze sprawdzeniem zdolności kredytowej.
Treść niniejszego ogłoszenia nie stanowi oferty handlowej w rozumieniu Kodeksu Cywilnego.
